Laboratorio in vendita

Bagno A Ripoli, Via Alessandro Volta
€ 350.000
6 locali 6 locali
320 Mq 320 Mq
2 bagni 2 bagni

Laboratorio in vendita

Bagno A Ripoli, Via Alessandro Volta

Descrizione annuncio

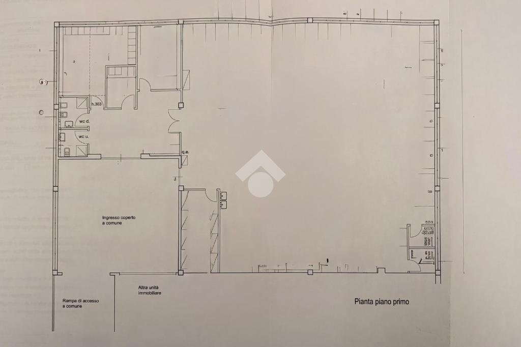
Nella zona di Bagno a Ripoli, precisamente in via Alessandro Volta, in un contesto industriale, proponiamo in vendita un laboratorio di circa 300 mq situato non distante dallo svincolo autostradale. Con le sue caratteristiche questa proprietà unisce l’efficienza produttiva ad una comoda logistica, risultando ideale per attività artigianali, chimiche, elettroniche o di stoccaggio e distribuzione.

L'immobile (libero su 3 lati) è raggiungibile tramite una rampa a comune dove troviamo due ingressi pedonali e indipendenti.
Il primo accesso può essere dedicato al carico/scarico merci che immette direttamente al laboratorio. Il secondo, separato, conduce alla zona uffici, garantendo un’accoglienza professionale e una divisione tra la parte operativa e quella amministrativa. In quest'ultima area sono inoltre presenti due bagni separati maschio/femmina e due locali destinati agli spogliatoi.

L'immobile è stato interamente ristrutturato nel 2017 comprendendo la realizzazione dell'impianto di climatizzazione caldo/freddo (sono presenti i certificati di conformità), l'impianto di aspirazione per la rimozione di odori nocivi e sostanze dannose (perfetto per chi effettua lavorazioni speciali) e l'impianto di video-sorveglianza. Inoltre, tutte le finestre presenti all'interno del laboratorio sono motorizzate.


Completano la proprietà due posti auto esclusivi, comodi per clienti, dipendenti o per i mezzi speciali.

DISCLAIMER

Il presente annuncio e le informazioni ivi contenute non costituiscono vincolo contrattuale. Gli annunci, nonostante la nostra accuratezza, possono presentare inesattezze, errori, omissioni e/o altre incongruenze dovute a software, gestionali, intelligenza artificiale e altre dinamiche di inserimento e lettura dati.

Ai sensi del vigente Regolamento Europeo GDPR, in materia di privacy, alcuni dati sono censurati, parzialmente o totalmente, o non rappresentativi della realtà.

Le fotografie potrebbero essere immagini di repertorio.

Per avere maggiori informazioni circa documentazione, geoposizionamento, situazione di fatto e di diritto, specifiche contrattuali o altro vi invitiamo a fissare un appuntamento presso le nostre agenzie.

Tecnocasa immobili per l'impresa è la divisione specializzata nella vendita e nella locazione di negozi, uffici, capannoni e attività commerciali: se intendi vendere, locare o ricercare un immobile del genere contattaci: siamo il punto di riferimento nel settore non abitativo.

Grazie a Kiron SpA, società di mediazione creditizia del Gruppo Tecnocasa, abbiamo convenzioni con decine di istituti bancari italiani e siamo in grado di aiutarti nella ricerca del mutuo più adatto alle tue esigenze

Mostra tutto

Nelle vicinanze

Trasporto pubblico Trasporto pubblico
Chiantigiana Dell'Antella
Chiantigiana Dell'Antella
160 m
Chiantigiana Ponte a Niccheri
Chiantigiana Ponte a Niccheri
180 m
Ricariche auto elettriche Ricariche auto elettriche
Bagno a Ripoli Moro | EnelX
300 m
Bagno a Ripoli Biblioteca Comunale | EnelX
630 m
Eneldrive (exSILFI) Benedetto Fortini
700 m
COOP Bagno a Ripoli | EnelX
710 m
Grassina Tegolaia | EnelX
1,1 Km
Scuole Scuole
Scuola Secondaria di I Grado "Francesco Redi"
540 m
Scuola Primaria "Vittorino da Feltre"
750 m
Scuola primaria Guglielmo Marconi
1,1 Km
Scuola dell'infanzia Manuela Masi
1,6 Km
International School Of Florence
1,9 Km
Farmacia Farmacia
Farmacia Comunale Ponte a Ema
850 m
Farmacia Comunale di Sorgane n. 17
2,1 Km
Farmacia Bischi
2,4 Km
Farmacia
2,6 Km
Ospedali Ospedali
Ospedale Santa Maria Annunziata
980 m
CUR 112 TOSCANA
2,8 Km
Ospedale Piero Palagi
2,9 Km
Supermercati Supermercati
Incoop
690 m
Coop
2,6 Km
Conad City
2,8 Km
Negozi Negozi
Forno panificio dolce e salato
640 m
L'Angolo del Pane
890 m
Unicoop
2,1 Km
Incoop
2,3 Km
Bar Bar
Casa del Popolo di Grassina
1,2 Km
Bar di Sorgane
2,3 Km
Bar Supremo
2,4 Km
Bar
2,4 Km
Cotton bar
2,4 Km
Ristoranti Ristoranti
Osteria Di'Giogo
650 m
Osteria del Rosso
1,3 Km
Ristoranti
1,5 Km
Rosticceria
2,2 Km
Mila Pizzeria asporto - consegna domicilio
2,3 Km
Mostra tutto

Caratteristiche

Rif.:
61201086
Piano:
1 di 1 (Piano rialzato)
Posti auto:
2
Condizionamento:
Autonomo
Ascensore:
No
Riscaldamento:
Autonomo
Mostra tutto
Prezzo Prezzo
€ 350.000
Rata mutuo Rata mutuo
€ 1.650 / mese
Spese annue Spese annue
€ 100
Proponi il tuo prezzoProponi il tuo prezzo

Altre caratteristiche

Descrizione dei locali
Bagno Con Finestra

Classe Energetica

G
G
G
G
G
G
G
G
G
EP globale non rinnovabile:
175.00 kW h/m² anno
EP globale rinnovabile:
175.00 kW h/m² anno
EP invernale del fabbricato:
EP estiva del fabbricato:
Anno di costruzione:
1950
Riscaldamento:
Autonomo
Tipo impianto:
Ad aria
Tipo alimentazione:
Aria

Ti interessa visionare l'immobile?

Fissa un appuntamento  Fissa un appuntamento

Richiedi informazioni

Clicca su Leggi per aprire l'informativa
* Questi campi sono obbligatori

Calcola il tuo mutuo

Semplice e senza impegno
Anticipo

( % )
Mutuo

( % )

pochi semplici passi

inserisci i tuoi dati
Questionario completato
Grazie per aver richiesto un appuntamento senza impegno con un nostro Consulente del Credito e Assicurativo.

Hai inserito correttamente tutti i dati necessari e a breve riceverai una e-mail con un link da convalidare per inviare i tuoi dati.
Affiliato
Impresa Firenze Oltrarno Srl
P.zza Gavinana, 7 R 50122 Firenze (FI)

Il nostro staff


  • Irene Denoth
    Affiliata
P.zza Gavinana, 7 R 50122 Firenze (FI)
Zona: Firenze
Mostra su mappa
Affiliato
Impresa Firenze Oltrarno Srl
P.zza Gavinana, 7 R 50122 Firenze (FI)

2026 Tecnocasa Franchising S.p.A. - P. IVA 08365160152 - Via Monte Bianco 60/A 20089 Rozzano (MI). Ogni agenzia ha un proprio titolare ed è autonoma. Privacy policy | Policy utilizzo | Cookie policy