Capannone in vendita

Firenze, Via Lunga - Federiga
€ 275.000
Prezzo aggiornato
8 locali 8 locali
215 Mq 215 Mq
4 bagni 4 bagni

Capannone in vendita

Firenze, Via Lunga - Federiga

Descrizione annuncio

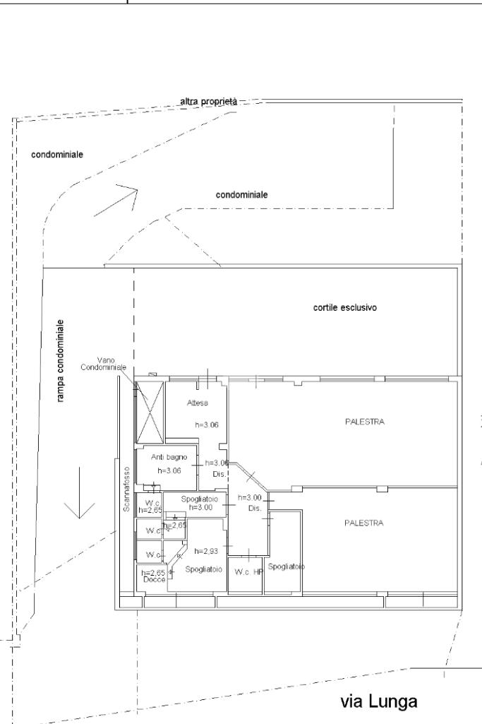
Investimento: Nella zona dell'Isolotto, precisamente in via Lunga, proponiamo in vendita un fondo, categoria catastale C4 di circa 200 mq oltre 100 mq di piazzale esclusivo e due posti auto.

Il negozio è locato da novembre 2024 ad una scuola di danza, ad un canone annuo di 24.000 euro oltre agli aumenti ISTAT già presenti dal secondo anno.

L’immobile è strutturato e attrezzato per attività sportive e ricreative ed è composto da: -due sale ballo di grandi dimensioni e funzionali all'attività; -due spogliatoi, separati per uomini e donne, entrambi dotati di doccia e servizi igienici; - uno spogliatoio dedicato ai bambini.

Oltre a questi spazi è presente anche una stanza insonorizzata per la musica, un bagno dedicato al personale e all'ingresso una stanza dedicata alla segreteria/accoglienza clienti.

Il negozio è dotato di fancoil, termosifoni negli spogliatoi e un climatizzatore caldo/freddo in una delle sale da ballo.


Di fronte all'immobile è presente un'ampa resede esclusiva di circa 100 mq oltre a due posti auto anche questi di proprietà esclusiva.

DISCLAIMER

Il presente annuncio e le informazioni ivi contenute non costituiscono vincolo contrattuale. Gli annunci, nonostante la nostra accuratezza, possono presentare inesattezze, errori, omissioni e/o altre incongruenze dovute a software, gestionali, intelligenza artificiale e altre dinamiche di inserimento e lettura dati.

Ai sensi del vigente Regolamento Europeo GDPR, in materia di privacy, alcuni dati sono censurati, parzialmente o totalmente, o non rappresentativi della realtà.

Le fotografie potrebbero essere immagini di repertorio.

Per avere maggiori informazioni circa documentazione, geoposizionamento, situazione di fatto e di diritto, specifiche contrattuali o altro vi invitiamo a fissare un appuntamento presso le nostre agenzie.

Tecnocasa immobili per l'impresa è la divisione specializzata nella vendita e nella locazione di negozi, uffici, capannoni e attività commerciali: se intendi vendere, locare o ricercare un immobile del genere contattaci: siamo il punto di riferimento nel settore non abitativo.

Grazie a Kiron SpA, società di mediazione creditizia del Gruppo Tecnocasa, abbiamo convenzioni con decine di istituti bancari italiani e siamo in grado di aiutarti nella ricerca del mutuo più adatto alle tue esigenze

Mostra tutto

Nelle vicinanze

Trasporto pubblico Trasporto pubblico
stazione di Firenze Porta al Prato
stazione di Firenze Porta al Prato
2,4 Km
Federiga (Foggini)
Federiga (Foggini)
200 m
Arcipressi (Ronco Corto)
Arcipressi (Ronco Corto)
450 m
Baccio da Montelupo
Baccio da Montelupo
130 m
Baccio da Montelupo 02
Baccio da Montelupo 02
160 m
Ricariche auto elettriche Ricariche auto elettriche
Eneldrive (ex SILFI) Pier della Francesca
280 m
Eneldrive /ex SILFI) Dolci
460 m
Eneldrive (ex SILFI) Maccari
600 m
Eneldrive (ex SILFI) Pisano
630 m
McDonald's Firenze Nenni
670 m
Scuole Scuole
Scuola dell'Infanzia "Don Lorenzo Milani"
520 m
Scuola dell'Infanzia "Bruno Ciari"
560 m
Scuola Secondaria di Primo Grado "Barsanti"
600 m
Scuola Secondaria di I Grado "Ghiberti"
610 m
Scuola Primaria "Niccolini"
680 m
Farmacia Farmacia
Farmacia Bertolotti
770 m
Farmacia Mungai
910 m
Farmacia
1,1 Km
Farmacia Comunale N. 3
1,2 Km
Farmacia San Giusto
1,6 Km
Ospedali Ospedali
Istituto Don Gnocchi
1,4 Km
Nuovo Ospedale San Giovanni di Dio
1,5 Km
ASL
2,3 Km
Casa di Cura "Villa dei Pini"
2,4 Km
Croce Rossa
2,4 Km
Supermercati Supermercati
Pam
370 m
Coop
630 m
Conad City
890 m
Pennu Market
1,1 Km
PamPanorama – Firenze Francavilla
1,2 Km
Negozi Negozi
Forno Curatolo
520 m
Negozi
570 m
Platynum
760 m
La Bottega del Pane
1,3 Km
Cecconi
1,3 Km
Bar Bar
Bar Camera Caffè
580 m
Pasticceria Conti
770 m
Bar
910 m
Caffè Diamante
940 m
Bar Dolce Aroma
1,1 Km
Ristoranti Ristoranti
Ristorante Pizzeria Sciuè Sciuè
350 m
Ramen Girl by Enoteca Luce
430 m
Kazan
500 m
Pizzeria Calypso
550 m
Pappa e ciccia - Pizza a taglio
760 m
Mostra tutto

Caratteristiche

Rif.:
61164040
Piano:
Seminterrato di 2
Totale piani:
2
Posti auto:
2
Condizionamento:
Autonomo
Ascensore:
No
Mostra tutto
Prezzo Prezzo
€ 275.000
Rata mutuo Rata mutuo
€ 1.296 / mese
Proponi il tuo prezzoProponi il tuo prezzo

Altre caratteristiche

Descrizione dei locali
Bagno Con Finestra

Classe Energetica

G
G
G
G
G
G
G
G
G
EP globale rinnovabile:
175.00 kW h/m² anno
Anno di costruzione:
1950
Riscaldamento:
Autonomo
Tipo impianto:
A radiatori
Tipo alimentazione:
Altro

Prezzo ridotto di €1 (9%%)

Ti interessa visionare l'immobile?

Fissa un appuntamento  Fissa un appuntamento

Richiedi informazioni

Clicca su Leggi per aprire l'informativa
* Questi campi sono obbligatori

Calcola il tuo mutuo

Semplice e senza impegno
Anticipo

( % )
Mutuo

( % )

pochi semplici passi

inserisci i tuoi dati
Questionario completato
Grazie per aver richiesto un appuntamento senza impegno con un nostro Consulente del Credito e Assicurativo.

Hai inserito correttamente tutti i dati necessari e a breve riceverai una e-mail con un link da convalidare per inviare i tuoi dati.
Affiliato
Impresa Firenze Oltrarno Srl
P.zza Gavinana, 7 R 50122 Firenze (FI)

Il nostro staff


  • Btisam Graouate
    Coordinatrice

  • Irene Denoth
    Affiliata
P.zza Gavinana, 7 R 50122 Firenze (FI)
Zona: Firenze
Mostra su mappa
Affiliato
Impresa Firenze Oltrarno Srl
P.zza Gavinana, 7 R 50122 Firenze (FI)

2026 Tecnocasa Franchising S.p.A. - P. IVA 08365160152 - Via Monte Bianco 60/A 20089 Rozzano (MI). Ogni agenzia ha un proprio titolare ed è autonoma. Privacy policy | Policy utilizzo | Cookie policy